Les variantes de montage

01 Cassette métallique
02 Méandre tubes en cuivre
03 Ailette aluminium thermoconductrice
04 Isolant
05 Crochets pour basculement
06 Plaque de plâtre pour isolation acoustique latérale

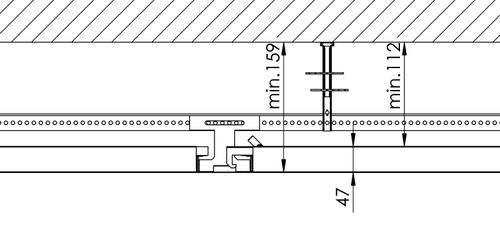
Ci-dessus hauteur minimale de mise en œuvre dans le cas d'une utilisation de suspensions Nonius (alternative possible avec suspentes tiges filetées pour hauteur de mise en oeuvre réduite, nous consulter).
rayonnement thermique
dans toute la pièce
courant d'air
... que nous obtenons avec la bonne technique d'activation. Différents matériaux et variantes d'assemblage peuvent être utilisés pour que le froid ou la chaleur du réseau primaire soit amené efficacement et sans perte à la surface du plafond :
Les tubes en cuivre sont le cœur du système de module de plafond climatique et transmettent la chaleur ou le froid à la surface du bac via des ailettes en aluminium parfaitement ajustées.
en savoir plusUn chauffage et un rafraîchissement efficaces nécessitent un échange thermique rapide et à faible perte. Un assemblage de plaque de graphite et de tubes en cuivre offre la meilleure solution à cet effet.
EN SAVOIR PLUSDonnées techniques
- Cassette : tôle d'acier galvanisé 0,7 mm
- Activation : Cuivre-aluminium ou Cuivre-graphite
- Isolant : Laine minérale ensachée dans un film LDPE
- Traitement acoustique : Plaque de plâtre 12,5 mm
- Revêtement par poudre de la cassette métallique dans la teinte RAL 9016 (autres couleurs RAL ou NCS sur demande)
- Longueur : max. 1800 mm
- Largeur : max. 700 mm
- Surface : max. 1,6 m²
- Poids : env. 21 kg/m² inclus activation et ossature
(éléments rapportés tels que luminaires, diffuseurs ou ossature primaire non compris)
- Puissance de rafraîchissement nominale (10K) : 111 W/m² selon EN 14240
- Puissance de chauffage nominale (15K) : 121 W/m² selon EN 14237
- Coefficient d'absorption acoustique pondéré selon la norme DIN EN ISO 354 : αw = 0,75
- Température de service : max. 50 °C
- Pression de service : max. 10,5 bar
- Diamètre de raccordmeent DN 12, raccordement par felxibles push-fit
- Perte de charge maximale recommandée : 30 kPa
L'isolation acoustique latérale Dn,f,w (C) est comprise entre 48 et 54 dB, selon le pourcentage de répartition entre bacs actifs et inactifs dans le local.
Ces valeurs sont attestées par un rapport d'essai normalisé selon EN ISO 10848-2:2006.








.png)
.avif)